Apakah Anda ingin
membangun rumah minimalis yang baru? Jika anda ingin membangun rumah minimalis yang
baru maka sebaiknya anda harus membuat perencanaan yang matang agar nantinya
rumah yang dibangun sesuai keinginan anda. Perencanaan tersebut yaitu anda
harus membuat peta rumah anda dari segi interior maupun eksterior dengan
melakukan sktesa pengukuran agar sesuai dengan rumah sebenarnya. Hal tersebut
disebut masyarakat sebagai pembuatan model
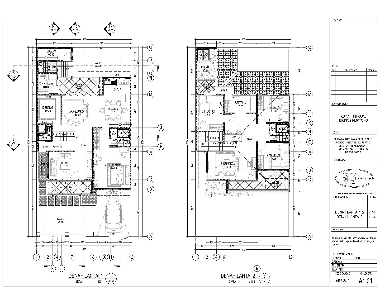
rumah minimalis dan denah rumah yang detail. Dengan anda membuat denah
rumah, maka anda bisa mengetahui bagian dan isi terpenting dari rumah anda.
Maka dari itu diperlukan denah rumah yang detail dan melakukan pengukuran rumah
sebenarnya. Namun membuat denah rumah membutuhkan kemampuan khusus supaya tidak
salah dalam melakukan pengukuran luas lahan dan membagi antara sisi interior
dan eksterior rumah.
Saat ini rumah yang
dijadikan favorit masyarakat yaitu rumah minimalis. Mengapa rumah minimalis
dijadikan rumah favorit karena rumah minimalis bentuk dan konsepnya sangatlah
sederhana namun masih tetap terlihat unik, elegan, megah, dan mewah. Oleh
karena itu masyarakat banyak mencari rumah minimalis dan menjadikan model
favorit dalam melakukan pembangunan rumah. Namun tidak lengkap rasanya bila
ingin membangun rumah minimalis yang baru tetapi tidak membuat denah rumah
terlebih dahulu. Sebaiknya anda membuat model rumah minimalis dan denah yang
detail agar nantinya rumah yang telah dibangun sesuai dengan denah rumah yang
dibuat. Dalam membuat denah rumah minimalis yang detail harus lah memperhatikan
bagian terpenting antara segi interior dan eksterior yang meliputi penggunaan
setiap ruangan ataupun kamar beserta ukurannya, pembagian setiap ruangan dan perkiraan perabotan apa saja yang digunakan.
Dalam membuat denah rumah anda harus menyesuaikan
dengan type dan luas rumah yang akan dibangun, karena type pada rumah minimalis
sangatlah banyak dan berbeda-beda. Membuat model rumah minimalis dan denah
bisa anda lakukan sendiri di rumah dengan cara manual atau digambar di sebuah
kertas atau anda juga bisa membuat denah rumah dengan menggunakan software
computer seperti autocad. Namun jika anda ingin denah rumah anda lebih
maksimal, anda harus menggunakan jasa desain arsitek rumah tetapi biayanya
relative agak mahal. Perancangan sebuah denah rumah minimalis memang harus
dibuat awal agar nantinya dalam pembangunan hasilnya bisa sesuai yang
diharapkan atau sesuai denah rumah.


